Lokal na sprzedaż Szczecin, Śródmieście

3 pokoje
70.04 m²
9 280,41 zł/m2
parter
LNI-LS-189
Oblicz ratę kredytu

650 000 zł

Lokal na sprzedaż
Nowa oferta

Szczegóły oferty

Symbol oferty LNI-LS-189
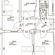
Powierzchnia 70,04 m²
Powierzchnia użytkowa [m2] 70,04 m²
Liczba pokoi 3
Rodzaj budynku kamienica
Standard
Opłaty wg liczników gaz
Piętro parter
Stan lokalu bardzo dobry
Mies. czynsz admin. 420 PLN
Okna PCV
Instalacje wymienione
Rok budowy 1930
Rodzaj lokalu jednopoziomowy
Gaz jest
Ogrzewanie C.O. GAZOWE
Alarm tak
Usytuowanie dwustronne
Możliwość parkowania tak
Witryna wystawowa od ulicy
Pomieszczenia
Liczba pomieszczeń biurowych 4
Liczba pomieszczeń socjalnych 1
Liczba pomieszczeń sanitarnych 1

Opis nieruchomości

Mieszkanie / lokal usługowy na sprzedaż – Szczecin, Śródmieście, ul. Ściegiennego

Na sprzedaż lokal usługowy/mieszkalny o powierzchni 70,04 m², położony na parterze zadbanej kamienicy w Śródmieściu Szczecina, przy ul. Ściegiennego.
Lokal został przrkształcony w użytkowy z mieszkania i od lat wykorzystywany jako kancelaria,
Isnieje możliwość wtórnego przeksztalcenia na lokal mieszkalny.i stworzenie pięknegp,  dużego mieszkania. Utrzymany w  bardzo dobrym stanie technicznym, gotowy do dalszej pracy bez konieczności inwestowania lub jako 

To miejsce idealne dla działalności wymagającej spokoju, prywatności i dobrej dostępności dla klientów.

Świetnie sprawdzi się jako:

  • kancelaria notarialna lub adwokacka
  • biuro doradcze
  • gabinety medyczne
  • gabinet psychologii / psychoterapii
  • inna działalność usługowa

Układ i funkcjonalność:

  • 3 niezależne pokoje – obecnie funkcjonujące jako gabinety
  • recepcja / część obsługi klienta
  • zaplecze socjalne
  • toaleta

Układ czytelny i wygodny, łatwy do ewentualnej adaptacji pod inną branżę.

Najważniejsze atuty:

  • Parter – wygodny dostęp dla klientów
  • Okna od ulicy – dobra widoczność i naturalne światło
  • Lokal usługowy – brak ograniczeń jak przy mieszkaniu
  • Kapitalny remont w 2014 roku – wymienione wszystkie instalacje
  • Lokal zadbany, regularnie odświeżany
  • Możliwość rozpoczęcia działalności od razu
  • Ogrzewanie gazowe
  • Niskie koszty utrzymania – czynsz z funduszem remontowym ok. 420 zł
  • Piwnica
  • Możliwość przejęcia obecnych najemców – opcja idealna dla inwestora, lokal zarabia od pierwszego dnia

To stabilny, dobrze utrzymany lokal w sprawdzonej lokalizacji.
Dobry zarówno do prowadzenia własnej działalności, jak i jako inwestycja z gotowym najemcą.

Zadzwoń i umów się na prezentację

Lokalizacja nieruchomości

Kalkulatory

Kalkulator kredytowy

Wysokość raty

PLN
%

Kalkulator kosztów

Podatek od czynności cywilno-prawnych

Taksa notarialna
(opłata notarialna)

Wniosek o wpis do WKW

VAT od prowizji
agencji nieruchomości

Vat od taksy notarialnej
(opłaty notarialnej)

Prowizja agencji nieruchomości

Wypisy aktu notarialnego

Razem

Uwaga: mogą wystąpić dodatkowe opłaty za założenie księgi wieczystej oraz ustanowienie hipoteki.

PLN
PLN
PLN
PLN
PLN
PLN
%
PLN

Podobne oferty

Lokal na sprzedaż

Szczecin, Śródmieście

68 m2 7 082,66 zł/m2

Formularz kontaktowy

Proszę wprowadzić poprawne imię i nazwisko
Proszę wprowadzić poprawny numer telefonu
Proszę wprowadzić poprawny adres e-mail
Proszę zaznaczyć wymagane zgody
Rozwiąż równanie:
23 4
Niepoprawny wynik