Mieszkanie na sprzedaż

Wałbrzych, Podzamcze

2 pokoje
40.00 m²
7 125,00 zł/m2
1 piętro
MNR-MS-3130
Oblicz ratę kredytu

285 000 zł

Nowa oferta

Szczegóły oferty

Symbol oferty MNR-MS-3130
Powierzchnia 40,00 m²
Liczba pokoi 2
Rodzaj budynku blok
Technologia budowlana płyta
Standard
Opłaty w czynszu administracja
Piętro 1
Liczba pięter w budynku 4
Stan lokalu do wprowadzenia
Mies. czynsz admin. 650 PLN
Okna PCV
Instalacje wymienione
Balkon jest
Liczba balkonów 1
Gaz jest
Woda ciepła - miejska
Dojazd asfalt
Ogrzewanie C.O. miejskie
Usytuowanie dwustronne

Opis nieruchomości

REZERWACJA.
Możliwość nabycia mieszkania przez cudzoziemców. Oferta na wyłączność.

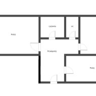
Mieszkanie, położone na pierwszym piętrze w budynku czteropiętrowym. Składa się z salonu z balkonem, pokoju, kuchni, łazienki z wc i przedpokoju , o łącznej powierzchni użytkowej 39 m2. Do mieszkania przynależy balkon oraz odnowiona piwnica.

Mieszkanie dwustronne, rozkładowe, bardzo ciepłe, o doskonałym układzie pomieszczeń - pełen rozkład.

Na mieszkaniu pełne wyposażenie: zabudowa kuchni wraz ze sprzętem AGD (lodówka, okap, nowy piekarnik i zmywarka), pralka, szafa w przedpokoju oraz pozostałe widoczne na zdjęciach umeblowanie. Dodatkowym atutem jest miejsce parkingowe na parkingu znajdującym się przy bloku - 50 zł/miesiąc, jest to przypisane miejsce za ogrodzeniem z bramą na pilot.

Czynsz na dwie osoby wraz z funduszem remontowym, opłatami administracyjnymi, ogrzewaniem oraz sporą zaliczką na wodę wynosi 650 zł.  

Bardzo dobra lokalizacja Podzamcza. 

Blisko do sklepów, przychodni, szkoły, przedszkola, apteki, piekarni, bazarku  i innych punktów usługowych.
Bardzo dobra komunikacja miejska.

Zapraszam na bezpłatną prezentację.

Chcesz sfinalizować zakup nieruchomości za pomocą kredytu?
Nasz doradca bezpłatnie pomoże Ci wybrać najkorzystniejszą ofertę spośród kilku banków.

Przedmiotowa oferta nie stanowi oferty określonej w art. 66 i następnych K.C.
Mentor Nieruchomości swoim  działaniem obejmuje: kompleksową obsługę wszystkich spraw organizacyjno-prawnych poprzedzających transakcję, w tym : precyzyjne badanie stanu prawnego nieruchomości, analizę zdolności kredytowej a następnie pełną obsługę kredytową, przygotowanie umów przedwstępnych i innych dotyczących nabycia nieruchomości, przygotowanie obsługi notarialnej transakcji.
 
Obsługę transakcji  prowadzimy w oparciu o ubezpieczenie OC i licencję pośrednika w obrocie nieruchomościami.

Nota prawna

Opis oferty zawarty na stronie internetowej sporządzany jest na podstawie oględzin nieruchomości oraz informacji uzyskanych od właściciela, może podlegać aktualizacji i nie stanowi oferty określonej w art. 66 i następnych K.C.

Kalkulatory

Kalkulator kredytowy

Wysokość raty

PLN
%

Kalkulator kosztów

Podatek od czynności cywilno-prawnych

Taksa notarialna
(opłata notarialna)

Wniosek o wpis do WKW

VAT od prowizji
agencji nieruchomości

Vat od taksy notarialnej
(opłaty notarialnej)

Prowizja agencji nieruchomości

Wypisy aktu notarialnego

Razem

Uwaga: mogą wystąpić dodatkowe opłaty za założenie księgi wieczystej oraz ustanowienie hipoteki.

PLN
PLN
PLN
PLN
PLN
PLN
%
PLN

Podobne oferty

Mieszkanie na sprzedaż

Wałbrzych, Podzamcze

2 Pokoje 48 m2 5 578,95 zł/m2

Mieszkanie na sprzedaż

Wałbrzych, Podzamcze

2 Pokoje 46 m2 6 500,00 zł/m2

Mieszkanie na sprzedaż

Wałbrzych, Podzamcze

4 Pokoje 68 m2 5 426,47 zł/m2

Mieszkanie na sprzedaż

Wałbrzych, Podzamcze

3 Pokoje 63 m2 5 079,37 zł/m2

Formularz kontaktowy

Proszę wprowadzić poprawne imię i nazwisko
Proszę wprowadzić poprawny numer telefonu
Proszę wprowadzić poprawny adres e-mail
Proszę zaznaczyć wymagane zgody
Rozwiąż równanie:
17 5
Niepoprawny wynik