Mieszkanie na sprzedaż Wałbrzych, Nowe Miasto

3 pokoje
85.48 m²
2 562,00 zł/m2
wysoki parter piętro
MNR-MS-3200
Oblicz ratę kredytu

219 000 zł

Mieszkanie na sprzedaż
Nowa oferta

Szczegóły oferty

Symbol oferty MNR-MS-3200
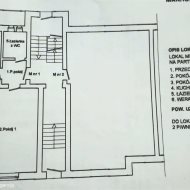
Powierzchnia 85,48 m²
Powierzchnia użytkowa [m2] 68,48 m²
Liczba pokoi 3
Rodzaj budynku kamienica
Technologia budowlana cegła
Standard
Opłaty w czynszu fundusz remontowy, Części wspólne, administracja
Piętro wysoki parter
Liczba pięter w budynku 2
Stan lokalu do generalnego remontu
Mies. czynsz admin. 600 PLN
Okna DREWNIANE STARY TYP
Instalacje niewymienione
Liczba balkonów 1
Gaz tak - miejski
Ogrzewanie piec kaflowy
Usytuowanie dwustronne
piwnica tak, 17,00 m²

Opis nieruchomości

Na sprzedaż przestronne, ustawne mieszkanie na Nowym Mieście.

Lokal położony na wysokim parterze, zadbanej kamienicy po remoncie klatki schodowej, dachu i elewacji.

Składa się z dużej kuchni (można przerobić na pokój z aneksem kuchennym), dwóch pokoi, łazienki z wc, przedpokoju oraz werandy o łącznej powierzchni użytkowej 68,48 m2.

Do mieszkania przynależą 2 piwnice oraz strych- wspólny.


Mieszkanie stanowiące odrębną własność z wykupionym gruntem. Za kamienicą podwórko.



Osobiście polecam i zapraszam na bezpłatną prezentację. Cena do negocjacji.


Chcesz sfinalizować zakup nieruchomości za pomocą kredytu?
Nasz doradca bezpłatnie pomoże Ci wybrać najkorzystniejszą ofertę spośród kilku banków.


Przedmiotowa oferta nie stanowi oferty określonej w art. 66 i następnych K.C.
Mentor Nieruchomości swoim  działaniem obejmuje: kompleksową obsługę wszystkich spraw organizacyjno-prawnych poprzedzających transakcję, w tym : precyzyjne badanie stanu prawnego nieruchomości, analizę zdolności kredytowej a następnie pełną obsługę kredytową, przygotowanie umów przedwstępnych i innych dotyczących nabycia nieruchomości, przygotowanie obsługi notarialnej transakcji.
 
Obsługę transakcji  prowadzimy w oparciu o ubezpieczenie OC i licencję pośrednika w obrocie nieruchomościami.

Kalkulatory

Kalkulator kredytowy

Wysokość raty

PLN
%

Kalkulator kosztów

Podatek od czynności cywilno-prawnych

Taksa notarialna
(opłata notarialna)

Wniosek o wpis do WKW

VAT od prowizji
agencji nieruchomości

Vat od taksy notarialnej
(opłaty notarialnej)

Prowizja agencji nieruchomości

Wypisy aktu notarialnego

Razem

Uwaga: mogą wystąpić dodatkowe opłaty za założenie księgi wieczystej oraz ustanowienie hipoteki.

PLN
PLN
PLN
PLN
PLN
PLN
%
PLN

Podobne oferty

Nowa oferta

Mieszkanie na sprzedaż

Wałbrzych, Nowe Miasto

3 pokoje 50 m2 5 100,00 zł/m2
Nowa oferta

Formularz kontaktowy

Proszę wprowadzić poprawne imię i nazwisko
Proszę wprowadzić poprawny numer telefonu
Proszę wprowadzić poprawny adres e-mail
Proszę zaznaczyć wymagane zgody
Rozwiąż równanie:
25 3
Niepoprawny wynik