Lokal na wynajem

Szczecin, Centrum

96.99 m²
51,55 zł/m2
parter
MTM-LW-6863

5 000 zł

Szczegóły oferty

Symbol oferty MTM-LW-6863
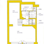
Powierzchnia 96,99 m²
Powierzchnia użytkowa [m2] 89,59 m²
Rodzaj budynku kamienica
Piętro parter
Liczba pięter w budynku 3
Stan lokalu do odświeżenia
Okna PCV
Instalacje dobre
Rodzaj lokalu jednopoziomowy
Przeznaczenie lokalu biurowy
Dojazd ASFALTOWA
Ogrzewanie elektryczne
Usytuowanie dwustronne
Możliwość parkowania w pobliżu
Położenie lokalu ruchliwa ulica
Witryna wystawowa duża
Wejście od ulicy
Podłogi terakota

Opis nieruchomości

Mamy przyjemność zaprezentować ofertę wielofunkcyjnej powierzchni biurowo – usługowo – handlowej, która znajduje przy ruchliwej ulicy Bolesława Krzywoustego w Szczecinie, w pobliżu Bramy Portowej.

Lokalizacja w samym Centrum Szczecina
 spełnia oczekiwania wielu branż, jest to miejsce z bardzo dużym ruchem pieszych. W tej chwili wokół tej lokalizacji stworzyło się zagłębie punktów handlowych i usługowych z branży ślubnej.

Z powodzeniem można tutaj stworzyć prestiżową siedzibę firmy, sklep, show room, lokal gastronomiczny, gabinety medyczne, salon SPA / beauty, kancelarie czy nowoczesne biuro dla kreatywnej działalności - branży IT lub konsultingowo - szkoleniowej.
Jest to jedna z bardziej rozpoznawalnych lokalizacji w Szczecinie.

Lokal posiada 2 wejścia od frontu z poziomu "0".
Duże witryny wystawowe zapewniają dużo światła dziennego oraz dają możliwość wyeksponowania asortymentu i reklamy użytkownika.

Lokal położony jest na parterze kamienicy po rewitalizacji. Jest to lokal stanowiący odrębną własność, z założoną księgą wieczystą. Powierzchnia 96,99 m 2 na którą składają się
- Parter z wejściem z poziomu 0 ok 89,59 m 2
- Piwnica ok 7,21 m2.

Standard lokalu po remoncie, nie wymaga nakładów inwestycyjnych.

Podany czynsz najmu jest to czynsz netto, należy doliczyć 23 % VAT. Istnieje możliwość nabycia lokalu.

Zapraszamy do kontaktu i prezentacji.



 

Podobne oferty

Lokal na wynajem

Szczecin, Centrum

0 Pokoje 80 m2 50,00 zł/m2

Lokal na wynajem

Szczecin, Centrum

0 Pokoje 90 m2 50,00 zł/m2

Lokal na wynajem

Szczecin, Centrum

0 Pokoje 150 m2 40,00 zł/m2

Lokal na wynajem

Szczecin, Centrum

0 Pokoje 81 m2 55,56 zł/m2

Formularz kontaktowy

Proszę wprowadzić poprawne imię i nazwisko
Proszę wprowadzić poprawny numer telefonu
Proszę wprowadzić poprawny adres e-mail
Proszę zaznaczyć wymagane zgody
Rozwiąż równanie:
26 6
Niepoprawny wynik